JC Crane - Equipamentos para movimentação de carga
Fale conosco
Produtos
Close Produtos
Open Produtos
Produtos
A empresa
Contato
Notícias
Produtos
A empresa
Contato
Notícias
A empresa
Contato
Notícias
Falar no WhatsApp
Início
/
Todos os produtos
/ Barra de Carga Motorizada
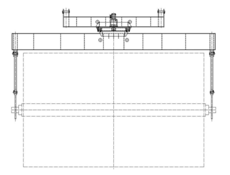
Barra de Carga Motorizada
Projetado para distribuir o peso de cargas pesadas e volumosas entre múltiplos pontos, proporcionando mais estabilidade e segurança;
Projeto e fabricação conforme norma NBR 8400
Falar com um especialista
Especificações técnicas
Aplicações e cenário de uso da Barra de carga motorizada
Entre em contato
Produtos
A empresa
Contato
Notícias
Falar no WhatsApp